Wonen nabij het centrum van LOMMEL ... vlakbij alle winkels en scholen met alle privacy en rust. De woningen zijn immers zodanig ontworpen dat het zonlicht maximaal binnenvalt via de grote raampartijen en hebben als extra pluspunt dat de tuinen zuidelijk georiënteerd zijn ! De rechterwoning = VERKOCHT
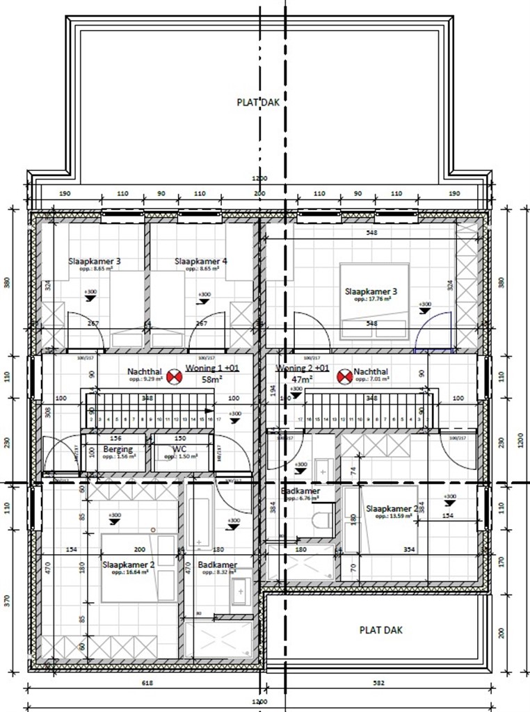
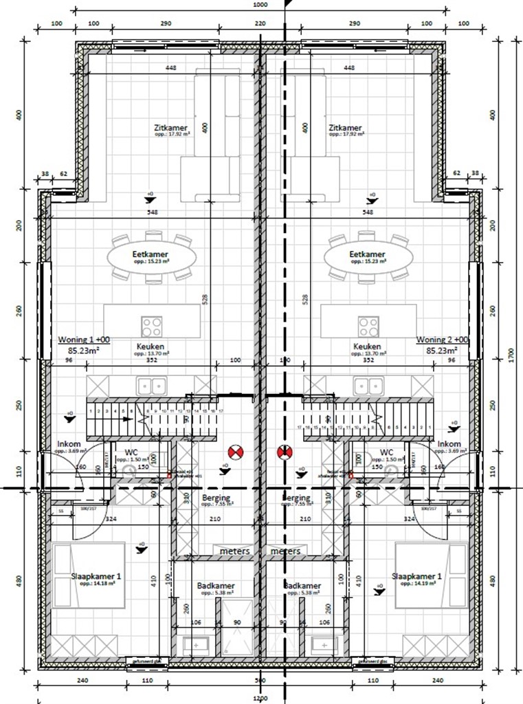
Twee energiezuinige nieuwbouwwoningen met 4 slaapkamers én 2 badkamers te koop op mooie zuidgerichte percelen van 4a76 (links) en 4a23 (rechts), voorzien van álle comfort : warmtepomp met actieve koeling, vloerverwarming, ventilatie, pv-panelen, maatkeuken, inloopdouches, dubbele lavabo. Afwerking kan volledig gekozen worden op maat. Binnendeuren (gelijkvloers) worden ook bréder uitgevoerd (toegankelijkheid).
Het bijzondere aan deze woning is dat er 1 slaapkamer én badkamer op het gelijkvloers aanwezig is, zodoende je hier LEVENSLANG kan wonen ! Nota : de binnen-indeling kan nog lichtjes aangepast worden, bv. 4 de slaapkamer gelijkvloers kan ook bureau of praktijkruimte worden !
De verkoop van het grondaandeel valt onder het gunstige registratiestelsel (12%) en de constructie onder het geldende BTW-stelsel (21%).
| Grondoppervlakte woning | 476 m2 |
| Woonoppervlakte woning | 170 m2 |
| E-peil | E5 |
| Kostprijs woning | 415.331 euro excl. kosten |
PRAKTISCH
- Bouwgrond
- Architect
- Alle studies (EPB, VC, RIO, BLOW, VENT, stabiliteit)
ENERGIEZUINIG
- Regenwaterput/ wadi
- ALU-ramen / glas (1.0) - gelaagd glas (waar nodig)
- Vloerverwarming (onder en boven) – weersafhankelijke regeling
- Warmtepomp met actieve koeling
- PV-panelen
EXTERIEUR
- Gelijmde gevelsteen
- Buitenriolering (incl. regenwaterput/wadi)
- Plat dak + vierkante zinken afvoerbuizen
INTERIEUR
- Ventilatiesysteem C+
- Vloerisolatie en gewapende eindchape
- Tegelvloer 90/90 (onder en boven), inclusief trap
- Bepleistering van alle muren/plafond
- Elektrische installatie : volledige installatie op basis van aangeleverd plan
- Centrale verwarming en sanitair
- Keuken, volledig geïnstalleerd
- Badkamermeubel en sanitaire toestellen
- Binnendeuren (type tubespaan), met zwarte klinken/scharnieren












